becker bosse Architekten

Zwiestädter

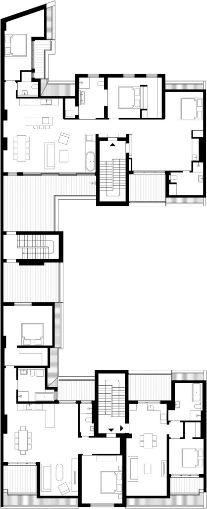
Ein Dachgeschoss in Neukölln wurde zu drei hochwertigen Wohnungen mit großzügig eingeschnittenen Terrassen ausgebaut. Alle Oberflächen wurden in Lehmedelputz hergestellt. In der größten Wohnung im Hinterhaus wurde das Hauptschlafzimmer mit Ankleide und Bad durch eine große Gaube zu einer Art Schlafbox, die sich auf der Innenseite durch abgerundete Ecken und einen auf Hochglanz polierten Lehmputz abzeichnet. Die Wohnung im Hinterhaus lässt sich bei Bedarf durch einen verschiebbaren Schrank in zwei Einheiten aufteilen. Eine besondere Augenweide ist die Badewanne im Wohnzimmer direkt neben dem Kamin. Da der gesamte Dachstuhl mit Holzschutzmittel belastet war, wurde entschieden, das Dachgeschoss vollständig abzutragen und neu zu errichten. Dabei wurde eine sehr hohe Energieeffizienzklasse erzielt.

  • Größe: 500 m²
  • Bauzeit: 2020 bis 2022
Die Küche im Wohnbereich der Hinterhauswohnung.
Schlafzimmer Ankleide und Badezimmer wurden in der roten Box untergebracht. Der Schieferbelag des Badezimmers setzt sich im Wohnzimmer fort und bildet den Sockel für Kamin und Badewanne
Die Inspiration für die Farbgebung der Terrasseneinschnitte holten sich die Eigentümer in Cuba
Auf der größten Terrasse lässt sich die sieben Meter lange Fensterfront öffnen und verbindet Wohnzimmer und Terrasse schwellenlos.
Alle Oberflächen wurden in durchgefärbtem Lehmedelputz erstellt. Diese Wände sind nicht gestrichen.
Im Bad erhielt der Putz eine grüne Färbung, um den roten Glanz der Box zu kontrastieren.
Ein kleines Gästebad wurde komplett in Anthrazit und Gold gehalten. Hier die Duschnische.
Die Whirlbadewanne kann durch die Schiebetüren angenehm mit dem Außenbereich verbunden werden.
Der Garderobenschrank kann verschoben werden, um einen Bereich von der Wohnung zu trennen und eine separate Eingangstür freizulegen.
Blick auf das Hinterhaus
Der Blick auf das Hinterhaus vor der Baumaßnahme.

Weiter Beitrag

Zurück Beitrag

© 2026 becker bosse Architekten

Thema von Anders Norén